
We present to your attention a plot of land with a construction project in Berlin, in the Pankow area.
Construction permission has been received.
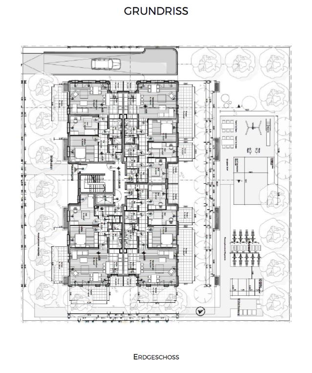
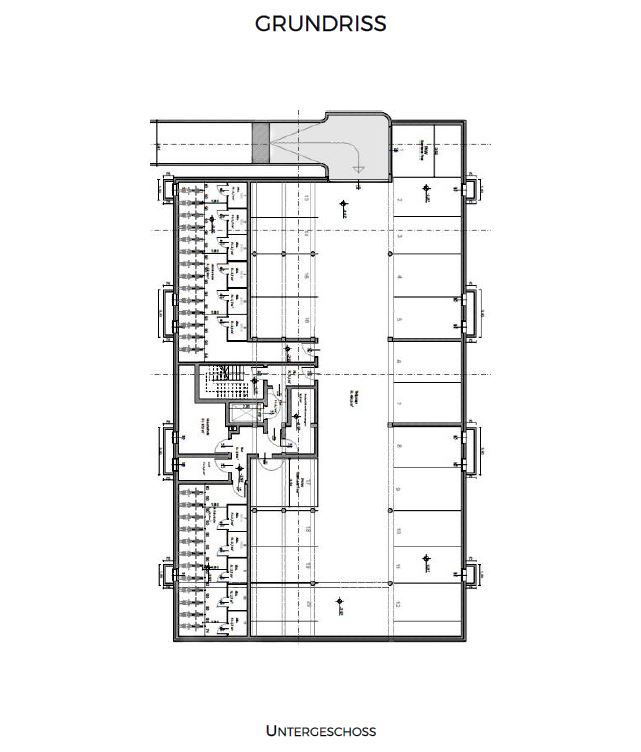
The project involves the construction of a residential building with a total area of approximately 2,224 sq.m., with 20 residential units and 20 underground parking spaces, on a plot of approximately 1,560.00 sq.m.
- Cost – 2,550,000 Euro
- The area of the land plot is about 1,560 sq.m.
- The planned construction area is 2,224 sq.m.
- Number of apartments – 20
- Underground parking spaces – 20
The Wilhelmsruh district of Pankow, originally a suburb of villas, is now an attractive green neighborhood between the districts of Pankow and Reinickendorf. Street trees, gardens and small shops characterize the image of this idyllic part of the city. The historic country houses and villas, some of which survive today, were built mainly in the late 19th and early 20th centuries.
There are numerous recreational opportunities in the immediate vicinity, including Lake Wilhelmsruer, the Schönholzer-Heide public park, Bürgerpark, Schlosspark and the Pankow summer swimming pool.
Public and private kindergartens, schools and doctors are within walking distance. Shops for everyday needs can be found at the intersection of the main street.
Although Wilhelmsruh is located in a very green area, transport links are excellent. A bicycle ride through parks and gardens to Berlin city center takes just half an hour. It will take the same amount of time to travel by car or public transport. Wilhelmsruh S-Bahn (city rail) station is just 1 km away. The bus stop is located right next to the house.
If you are interested in this and other objects, you can leave a request. Employees of our company will contact you shortly and provide you with objects that meet your request.
| Price: | €2 550 000 EUR |
| City: | Berlin |
| State: | Berlin |
| Square Meters: | 1560 |
| Bedrooms: | - |
| Bathrooms: | - |
| Property Type: | Plot of Land |













